Featured image of post Marlette Mobile Home Floor Plans : (part of clayton manufactured homes/cmh) .marlette marlette homes is a provider of above average manufactured mobile homes.

Marlette Mobile Home Floor Plans : (part of clayton manufactured homes/cmh) .marlette marlette homes is a provider of above average manufactured mobile homes.

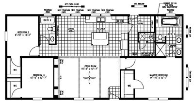
Maps are not to scale, and are for relative location purposes only.

Built with Hugo Cuy
Theme Reang Cuy v.%!(EXTRA string=2.0.1) designed by Ngopi24Jam.cuy